Geschäftshaus und Kindertagesstätte in Hamburg
Baulückenschließung im urbanen Kontext
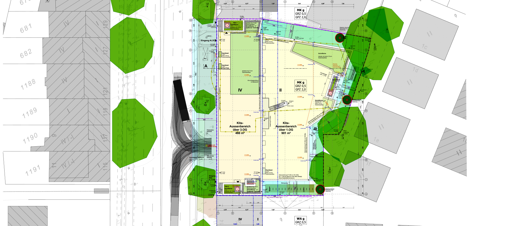
Auf dem Grundstück eines alten Discount-Marktes in einem ehemaligen Kino, das inzwischen rechts und links von einer 4- bis 6-geschossigen, straßenbegleitenden Bebauung eingefasst ist, soll der Verbrauchermarkt neu gestaltet und darüber hinaus Raum für eine neue Kindertagesstätte geschaffen werden.
Unser Ziel war es, die vorhandene städtebauliche Lücke durch einen 5-geschossigen Neubau zu schließen und damit das Gesamtbild des Straßenzugs sinnvoll zu ergänzen.
Offenheit, Transparenz und genügend Freiraum für die Nutzer, insbesondere für die Kinder, sollten im Entwurf zum Ausdruck kommen.
Um die für den Verbrauchermarkt und die Kita erforderlichen 35 KFZ-Stellplätze auf dem verhältnismäßig kleinen Grundstück unterbringen zu können, werden diese, sowie auch die Anlieferung des Marktes in der Erdgeschossebene untergebracht.
Der Verbrauchermarkt befindet sich im 1. Obergeschoss und die Kindertagesstätte für ca. 225 Kinder wird im 2. und 3. Obergeschoss eingerichtet.
Die teilweise begrünten Dachflächen stehen der Kindertagesstätte als Freiraum zum Spielen und Toben an der frischen Luft zur Verfügung.
| Planungs-/ Genehmigungszeitraum | 2016 - 2024 |
| Leistungsphasen abgeschlossen | 1 – 4 |
| Leistungsphasen in Planung | 5 – 8 |
| Kindertagesstätte | ca. 1.524 m² |
| Gewerbefläche | ca. 1.889 m² |
| KFZ-Stellplätze | 35 |
| Fahrradstellplätze | 80 |